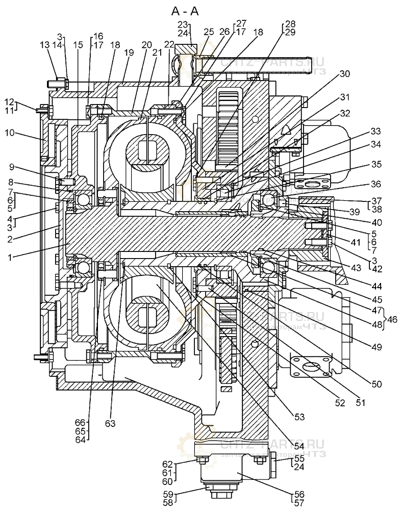
| Поз. | Обозначение | Наименование | Кол-во |
| - | 64-14-14СП | Гидротрансформатор с редуктором приводов | - |
| 1 | 64-14-278 | Корпус | 1 |
| 2 | 700-29-2477 | Шпилька | 4 |
| 3 | – | Гайка М12×1,25-7Н.6.019 | 4 |
| 4 | – | Шайба 12 ОТ 65Г 09 | 54 |
| 5 | 64-14-110СП | Клапан | 1 |
| 6 | 64-14-6737 | Прокладка | 1 |
| 7 | 700-41-3601 | Болт поворотного угольника | 2 |
| 8 | – | Кольцо 14×20 | 5 |
| 9 | – | Датчик указателя температуры ТМ-100В; ТМ-100В-Э; ТМ-100В-Т | 1 |
| 10 | – | Датчик аварийного давления ММ-126Д; ММ-126Д-Э; ММ-126Д-Т | 1 |
| 11 | 111-14-106СП | Трубка | 1 |
| 12 | – | Насос НШ32У-3Л | 1 |
| 13 | 700-40-2631 | Прокладка | 2 |
| 14 | 37151 | Пробка | 5 |
| 15 | – | Насос НШ50М-3Л | 1 |
| 16 | 700-29-2474 | Шпилька | 4 |
| 17 | 700-30-2099 | Гайка | 4 |
| 18 | – | Шайба 10 ОТ 65Г 09 | 40 |
| 19 | – | Болт М12-6g×30.58.019 | 70 |
| 20 | 700-32-2198 | Штифт | 2 |
| 21 | 700-37-2154 | Пробка | 3 |
| 22 | – | Кольцо 27×35 | 3 |
| 23 | 64-14-255 | Корпус | 1 |
| 24 | – | Болт М12-6g×40.58.019 | 70 |
| 25 | 64-14-277 | Крышка | 1 |
| 26 | 700-40-9489 | Прокладка | 1 |
| 27 | – | Болт М10-6g×30.58.019 | 20 |
| 28 | 700-32-2210 | Штифт | 4 |
| 29 | 700-29-2136 | Шпилька | 8 |
| 30 | – | Насос НШ100А-3Л | 1 |
| 31 | 700-40-9128 | Прокладка | 1 |
| 32 | 64-14-274 | Крышка | 1 |
| 33 | 700-40-9484 | Прокладка | 1 |
| 34 | – | Болт М8-6g×20.88.35.019 | 4 |
| 35 | – | Шайба 8Т65Г09 | 4 |
| Поз. | Обозначение | Наименование | Кол-во |
| 1 | 64-14-320 | Вал | 1 |
| 2 | 700-18-13090 | Опора | 1 |
| 3 | 28558 | Болт | 26 |
| 4 | 700-31-2827 | Пластина стопорная | 6 |
| 5 | 700-30-2266 | Гайка | 1 |
| 6 | – | Винт ВМ8-8g×16.14Н.019 | 3 |
| 7 | 62-14-61 | Пластина | 2 |
| 8 | – | Кольцо 155-160-36-2-2 | 1 |
| 9 | 700-32-2249 | Штифт | 2 |
| 10 | 700-18-4046СП | Фланец | 1 |
| 11 | 700-28-2694 | Болт | 16 |
| 12 |
700-31-2815; 700-31-2815-01 |
Пластина стопорная |
4; 4 |
| 13 | 700-40-9457 | Прокладка | 1 |
| 14 | – | Шайба 12 ОТ 65Г 09 | 12 |
| 15 | 700-18-13024 | Корпус | 1 |
| 16 | – | Болт М12-6g×30.58.019 | 70 |
| 17 | 700-31-2741-05 | Планка | 30 |
| 18 | 700-40-8383 | Кольцо | 3 |
| 19 | 700-18-13091 | Корпус | 1 |
| 20 | 700-18-13089 | Корпус | 1 |
| 21 | 111-14-11 | Колесо турбинное | 1 |
| 22 | 111-14-12 | Колесо насосное | 1 |
| 23 | 700-41-2575 | Штуцер | 1 |
| 24 | – | Кольцо 27×35 | 4 |
| 25 | 700-18-4043СП | Труба | 1 |
| 26 | 64-14-163СП | Корпус | 1 |
| 27 | – | Болт М12-6g×45.58.019 | 41 |
| 28 | 700-28-2702 | Болт | 12 |
| 29 | 700-31-2819 | Пластина стопорная | 6 |
| 30 | 64-14-267 | Колесо зубчатое | 1 |
| 31 | 64-14-261 | Корпус | 1 |
| 32 | 64-14-263 | Втулка | 1 |
| 33 | 700-58-2611 | Кольцо В180 | 1 |
| 34 | – | Подшипник 32124 | 1 |
| 35 | 700-58-2656 | Кольцо | 1 |
| 36 | – |
Подшипник 176218; 176218Б3 |
2 |
| 37 | 64-14-260 | Крышка | 1 |
| 38 | 700-40-9482 | Прокладка | 1 |
| 39 | – | Манжета 100×125 VERITAS | 1 |
| 40 | 64-14-319 | Втулка | 1 |
| 41 | 64-12-42 | Крышка | 1 |
| 42 | 700-31-2330 | Пластина стопорная | 1 |
| 43 | 64-12-321 | Муфта | 1 |
| 44 | 3308-289 | Кольцо | 1 |
| 45 | 64-14-123 | Кольцо | 2 |
| 46 | 64-14-164СП | Ось | 1 |
| 47 | 64-14-262 | Втулка | 1 |
| 48 | 64-14-259 | Ось | 1 |
| 49 | 700-40-8755 | Кольцо | 2 |
| 50 | 700-42-2721 | Кольцо | 2 |
| 51 | 700-32-2201 | Штифт | 2 |
| 52 | 700-40-9483 | Прокладка | 1 |
| 53 | 111-14-18 | Кольцо | 1 |
| 54 | 111-14-13 | Колесо реакторное | 1 |
| 55 | 700-37-2154 | Пробка | 3 |
| 56 | 111-14-32 | Поддон | 1 |
| 57 | 700-40-9211 | Прокладка | 1 |
| 58 | 50-26-757СП | Клапан слива | 1 |
| 59 | 40927СП | Кольцо | 1 |
| 60 | Болт М10-6g×30.58.019 | 20 | |
| 61 | – | Шайба 10 ОТ 65Г 09 | 8 |
| 62 | – | Гайка М10-7Н.6.019 | 8 |
| 63 | 700-58-2091 | Кольцо В110 | 5 |
| 64 |
111-14-49; 111-14-49-01 |
Стяжка | 14 |
| 65 | 700-31-2507 | Пластина стопорная | 4 |
| 66 | – | Гайка М14×1,5-7Н.6.019 | 14 |
| Поз. | Обозначение | Наименование | Кол-во |
| 1 | 64-14-268 | Колесо зубчатое | 2 |
| 2 | 700-58-2091 | Кольцо В110 | 5 |
| 3 | – | Подшипник 122 | 4 |
| 4 | 64-14-264 | Корпус | 1 |
| 5 | – | Болт М12-6g×30.58.019 | 70 |
| 6 | – | Шайба 12ОТ 65Г 09 | 58 |
| 7 | – | Болт М10-6g×45.58.019 | 12 |
| 8, 36 | – | Шайба 10ОТ 65Г 09 | 44 |
| 9 | 64-14-251 | Втулка | 2 |
| 10 | 700-39-527 | Кольцо В60 | 2 |
| 11 | 700-58-2414 | Кольцо | 1 |
| 12 | 64-14-253 | Муфта | 1 |
| 13 | 700-28-2336 | Болт | 8 |
| 14 | 700-40-9128 | Прокладка | 2 |
| 15 | 700-40-9485 | Кольцо | 2 |
| 16 | 64-14-275 | Жиклер | 3 |
| 17 | 62-14-24 | Крышка | 2 |
| 18 | 64-14-266 | Корпус | 1 |
| 19 | 700-29-2474 | Шпилька | 8 |
| 20 | 700-30-2099 | Гайка | 8 |
| 21 | 700-58-2332 | Кольцо В25.Ц9хр.т. | 1 |
| 22 | 64-14-281 | Муфта | 1 |
| 23 | 700-40-8755 | Кольцо | 2 |
| 24 | 64-14-265 | Корпус | 1 |
| 25 | 700-58-494 | Кольцо В90 | 3 |
| 26 | 64-14-272 | Крышка | 1 |
| 27 | 64-14-271 | Муфта | 1 |
| 28 | 700-32-2238-01 | Штифт | 2 |
| 29 | 64-14-273 | Втулка | 1 |
| 30 | 64-14-269 | Колесо зубчатое | 1 |
| 31 | – | Подшипник 118 | 4 |
| 32 | 700-40-9538 | Прокладка | 1 |
| 33 | 64-14-248 | Корпус | 1 |
| 34 | 700-40-9526 | Прокладка | 1 |
| 35 | – | Болт М10-6g×70.58.019 | 8 |
| 37 | 50-60-231СП | Насос | 1 |
| 38 | 700-40-6199 | Прокладка | 1 |
| 39 | 700-37-2154 | Пробка | 3 |
| 40 | – | Кольцо 27×35 | 3 |
| 41 | 700-40-9460 | Кольцо | 1 |
| 42 | 64-14-270 | Колесо зубчатое | 1 |
| 43 | – | Болт 3М12-6g×25.88.38ХС.019 | 8 |
| 44 | 700-31-2755 | Пластина стопорная | 4 |
| 45 | 111-14-38 | Втулка | 1 |
| 46 | 111-14-27 | Ступица | 1 |
| 47 | 64-14-252 | Муфта | 1 |
| 48 | 64-14-250 | Втулка | 1 |
| 49 | 64-14-249 | Крышка | 1 |